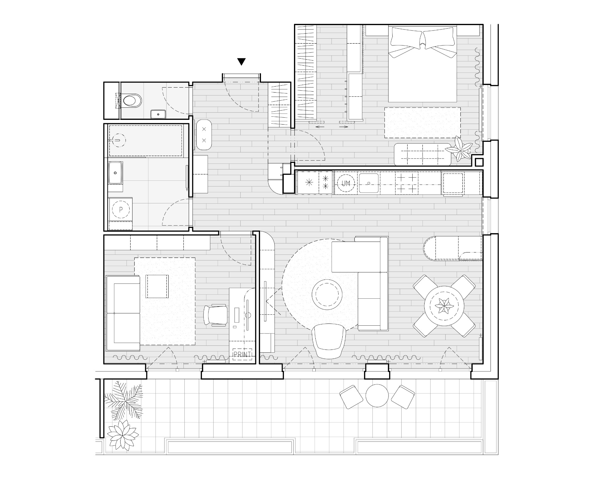
INTERIÉR BYTU - VERDENA


_lokalita: Bratislava - Rača
_typ projektu: návrh interiéru a nábytku na mieru
_stupeň PD: realizácia
_rok: 2025